Moderne Büro- oder Praxisfläche mit zentralem Besprechungsraum und barrierefreiem Zugang
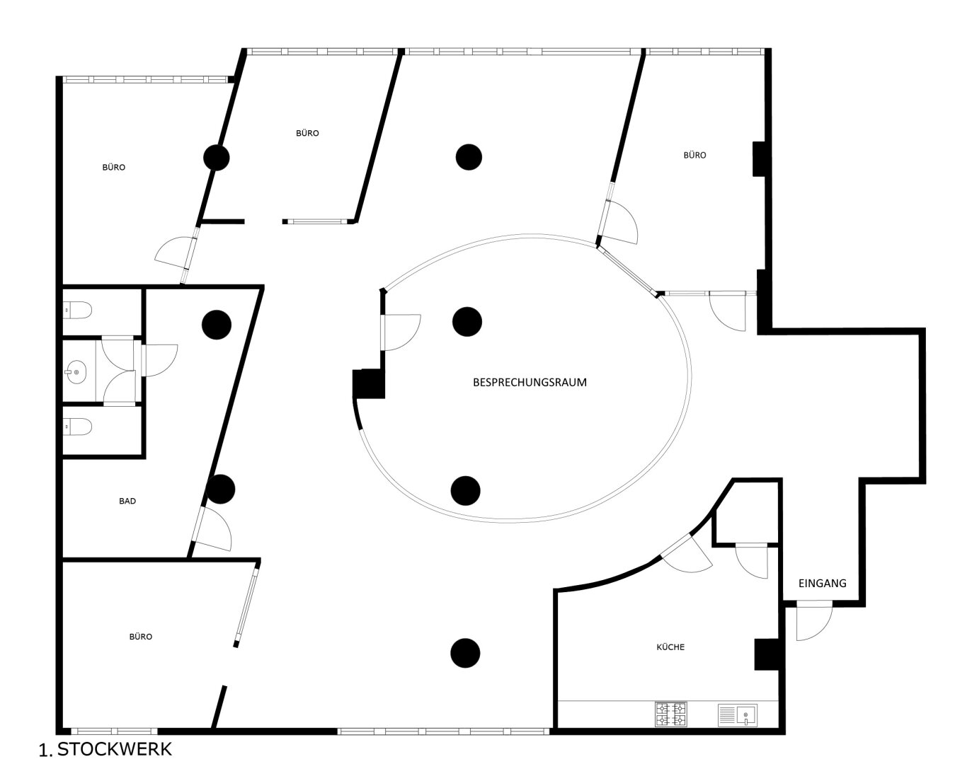
Diese ca. 228 m² große Büro- bzw. Praxisfläche im 1. Obergeschoß bietet eine klare Raumstruktur für Unternehmen und Freiberufler mit Bedarf an mehreren Arbeitsräumen und einem zentralen Besprechungsbereich. Die Einheit eignet sich besonders für Ordinationen, Therapie, Beratung, Kanzleien oder moderne Dienstleistungsunternehmen.
Die Fläche ist hell, neuwertig und funktional ausgestattet.
Vorhanden sind Glastrennwände, Klimaanlage, EDV-Verkabelung, Einbauküche, 2 WCs, Lift sowie barrierefreier Zugang.
Die Lage auf der Hütteldorfer Straße überzeugt durch direkte Nähe zu U-Bahn, Bus, Straßenbahn und Bahnhof. Sofort beziehbar, unbefristete Anmietung möglich.
Infrastruktur / Entfernungen
Gesundheit
Arzt <250m
Apotheke <250m
Klinik <1.250m
Krankenhaus <1.500m
Kinder & Schulen
Schule <500m
Kindergarten <250m
Universität <1.000m
Höhere Schule <1.250m
Nahversorgung
Supermarkt <250m
Bäckerei <250m
Einkaufszentrum <750m
Sonstige
Geldautomat <250m
Bank <250m
Post <500m
Polizei <750m
Verkehr
Bus <250m
U-Bahn <250m
Straßenbahn <250m
Bahnhof <250m
Autobahnanschluss <4.750m
Angaben Entfernung Luftlinie / Quelle: OpenStreetMap
- Mietpreisauf Anfrage
- Betriebskosten Netto:€ 0,00



