Zum Verkauf gelangt eine traumhafte und herrlich lichtdurchflutete 4-Zimmer-Dachgeschoßwohnung in einem im Jahr 2020 errichteten Neubau in zentraler und dennoch herrlicher Grünlage von Bisamberg.
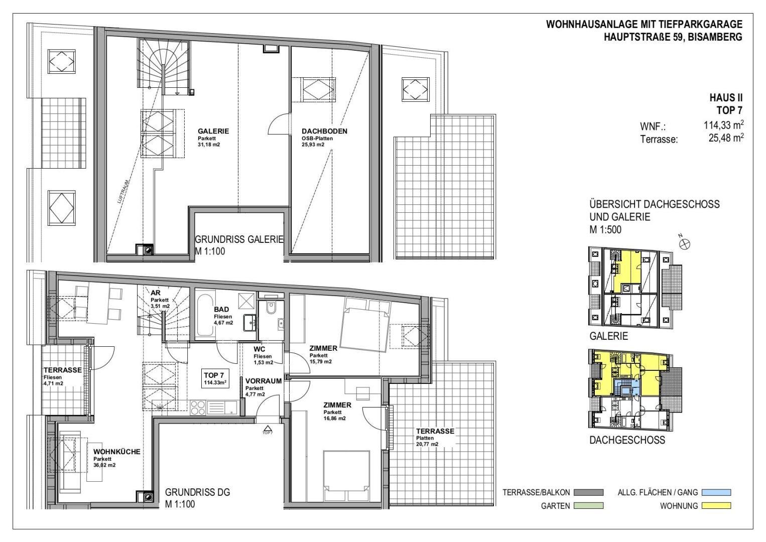
Die teilmöblierte Wohnung weist eine Wohnfläche von ca. 114 m² - aufgeteilt auf 2 Geschoße - sowie zwei Terrassen mit insgesamt ca. 25m² auf. Der Grundriss im 1. Dachgeschoß unterteilt sich in einen Vorraum, ein Badezimmer mit bodenebener Dusche, Waschtisch und Waschmaschinenanschluss, ein separates WC, zwei Schlafzimmer (davon eines mit Zugang zur ost-seitigen Terrasse) sowie eine großzügige Wohnküche mit Zugang zur west-seitigen Terrasse. Die traumhafte Tischlerküche mit hochwertigen Geräten der Marke Miele lädt zum Kochen ein. Insbesondere der Induktionsherd mit in der Kochplatte integriertem Dunstabzug bildet ein Highlight dieser tollen Küche. Der Neupreis der Küche beträgt ca. 24.000€. Auch bietet die Küche ausreichend Stauraum, da die Küchenzeile um die Ecke (Richtung Wohnzimmer) erweitert wurde. Weiteren Stauraum finden Sie im Abstellraum unter der hochwertigen Eichenholz-Treppe, welche von der Wohnküche auf die Galerie im 2. Dachgeschoß führt. Die Galerie bildet ein weiteres Highlight der Wohnung und wird durch großzügige Dachflächenfenster mit Licht durchflutet. Die Galerie führt in einen abgetrennten Dachbodenbereich mit ca. 26 m2, welcher zwar nicht zur Wohnfläche zählt, aber dennoch gleichwertig genutzt werden kann.
Beheizt wird dieses Objekt mittels einer Gaszentralheizung in Kombination mit einer Fußbodenheizung. An heißen Sommertagen sorgt eine eingebaute Klimaanlage für ein angenehmes Raumklima. Ein großzügiges Einlagerungsabteil im Keller sowie ein im Preis inkludierter Stellplatz in der Tiefgarage runden dieses Angebot ab und macht es zu Ihrem perfekten, neuen Zuhause.
Haus 2/Top 7 Dachgeschoßwohnung
- Wohnnutzfläche: 114,33 m²
- Dachboden: 25,93 m²
- Terrasse: 25,48 m²
- Stockwerkslage: DG
Der Grundriss gliedert sich wie folgt:
1.Ebene:
- Vorraum
- WC
- Bad mit bodenebener Dusche, Waschtisch und Waschmaschinenanschluss
- Zimmer 1 mit Zugang zur ost-seitigen Terrasse
- Zimmer 2
- Wohnküche mit Zugang zur west-seitigen Terrasse
- Abstellraum unter der Stiege
2.Ebene (Galerie):
- Galerie
- Dachboden (belichtet mittels Dachflächenfenster)
"ÜBERZEUGEN SIE SICH SELBST! ANSEHEN LOHNT SICH!"
Für weitere Details stehe ich Ihnen gerne jederzeit unter 01 997 79 20 zur Verfügung.
Infrastruktur / Entfernungen
Gesundheit
Arzt <500m
Apotheke <1.000m
Klinik <6.000m
Krankenhaus <2.500m
Kinder & Schulen
Schule <500m
Kindergarten <500m
Universität <4.000m
Höhere Schule <8.000m
Nahversorgung
Supermarkt <1.000m
Bäckerei <500m
Einkaufszentrum <4.000m
Sonstige
Bank <500m
Geldautomat <500m
Post <500m
Polizei <2.500m
Verkehr
Bus <500m
Straßenbahn <5.000m
U-Bahn <8.500m
Bahnhof <1.500m
Autobahnanschluss <1.500m
Angaben Entfernung Luftlinie / Quelle: OpenStreetMap
- Kaufpreis:€ 535.000,00
- Provision:3% des Kaufpreises zzgl. 20% USt.
















































